« Αμφιέρειστη πλάκα Αμφιέρειστη πλάκα με πρόβολο »

 

Τετραέρειστη πλάκα

Αν στο προηγούμενο παράδειγμα προστεθούν δύο δοκοί στις θέσεις των ελεύθερων παρυφών, τότε η πλάκα Π1 γίνεται τετραέρειστη.


Η τετραέρειστη πλάκα Π1, πατάει στις τέσσερεις δοκούς
<μελέτη: slabs20>
Η τετραέρειστη πλάκα Π1, πατάει στις τέσσερεις δοκούς
<μελέτη: slabs20>

Η λειτουργία της τετραέρειστης πλάκας είναι παρόμοια με τη λειτουργία της αμφιέρειστης, μόνο που η λειτουργία αυτής είναι και προς τις δύο διευθύνσεις.

Οι κανόνες όπλισης είναι επίσης παρόμοιοι και προς τις δύο διευθύνσεις.


Λειτουργία τετραέρειστης πλάκας
Λειτουργία τετραέρειστης πλάκας

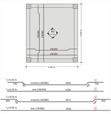
Ο ξυλότυπος σιδερά της τετραέρειστης πλάκας
Ο ξυλότυπος σιδερά της τετραέρειστης πλάκας

Η τετραέρειστη πλάκα, από άποψη λειτουργίας, ασφάλειας και οικονομικότητας είναι ασύγκριτα καλύτερη από την ισοδύναμη αμφιέρειστη .

 


« Αμφιέρειστη πλάκα Αμφιέρειστη πλάκα με πρόβολο »

Απόκτηση εξοπλισμού με Χρηματοδότηση 100% μέσω του ΕΣΠΑ

Π-SYSTEMS ΑΕ



Ευχαριστούμε για την υποστήριξη τις διακεκριμένες εταιρίες:


ΧΑΤΖΗΔΑΒΙΤΙΔΗΣ ΑΕ ΧΑΤΖΗΔΑΒΙΤΙΔΗΣ ΑΕ

Π-SYSTEMS ΑΕ Π-SYSTEMS ΑΕ